
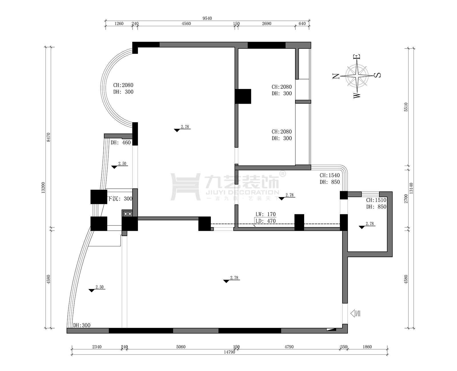
本案采用意式輕奢風格,結合輕奢主義打造意式簡約空間,因簡約中透著奢華與時尚,具有空間寬敞、內外通透的特質。
整體運用了木飾面、亞克力以及巖板等不同材質的碰撞,整體空間精致感十足。空間上最大限度引入自然光,通過線條的簡單碰撞,融合內斂木色色塊與巖板的和諧統一,打造出高雅奢華的家居風格。
































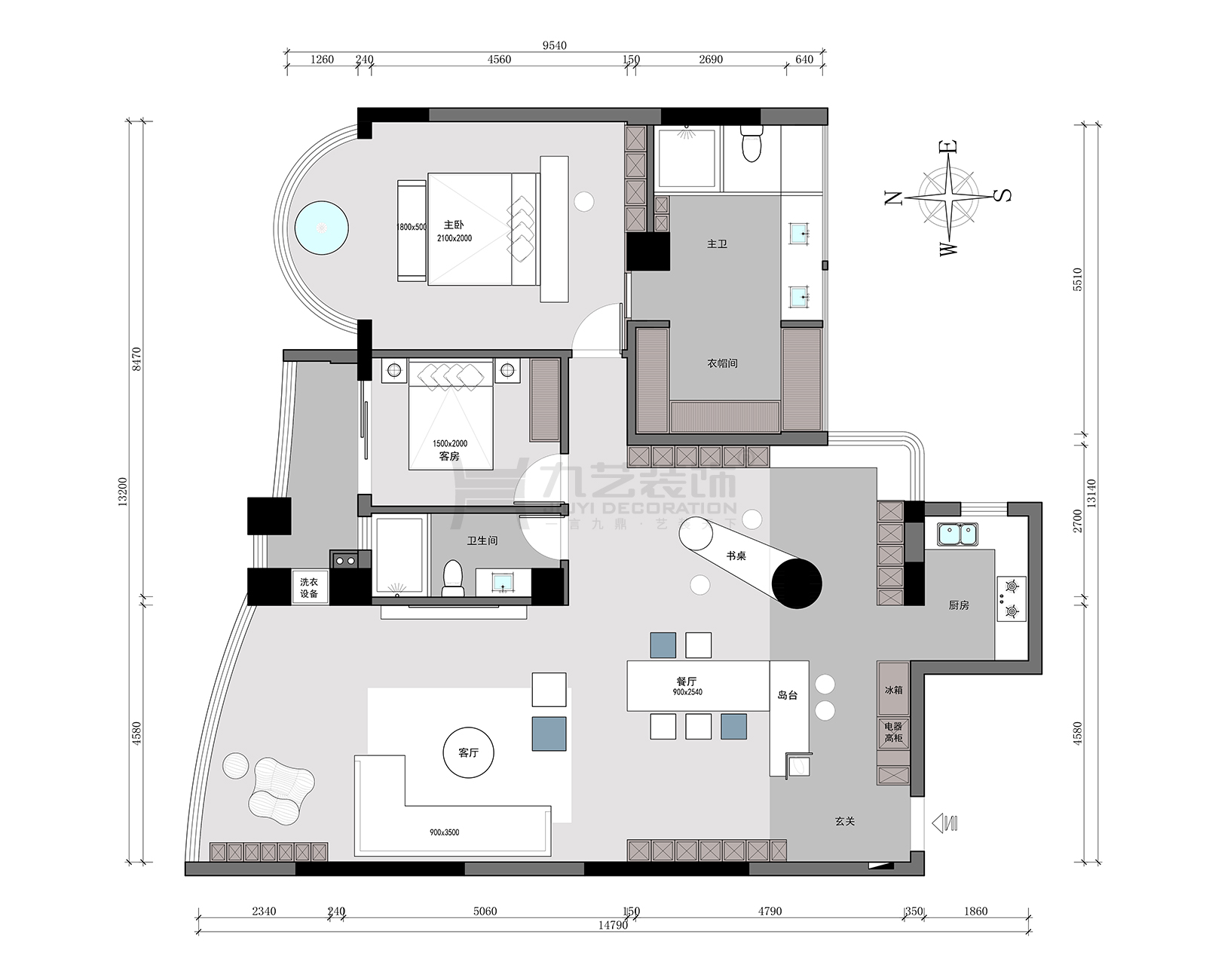
本案采用意式輕奢風格,結合輕奢主義打造意式簡約空間,因簡約中透著奢華與時尚,具有空間寬敞、內外通透的特質。
整體運用了木飾面、亞克力以及巖板等不同材質的碰撞,整體空間精致感十足。空間上最大限度引入自然光,通過線條的簡單碰撞,融合內斂木色色塊與巖板的和諧統一,打造出高雅奢華的家居風格。